Tous les projets
Stylisme
Conception d'espace
Graphisme
Contact
Tous les projets
Stylisme
Conception d'espace
Graphisme
Contact
ELODIE SALÉ | STYLISME D'ESPACE
2019
Interior Design, Architecture, Set Design
Planche d'inspiration
Mood board
Identité Jardin pamplemousse
2019
Graphic Design, Branding, Typography
Collection Horizon
2021
Photography Styling, Art Direction, Interior Design
Le bar Calligramme de l'hôtel Mirabeau
2023
Architecture Concept, hospitality, Styling
Un appartement graphique et coloré
2021
Fashion Styling, Architecture Photography
Un Appartement minimaliste
2020
Photography, Photography Styling, Interior Design
Les Herbiers métallisés d'Atelier Germain
2021
Photography Styling, set design
Un appartement féminin et actuel
2022
Architecture Concept, Interior Design, Architecture Photography
La suite Evasion de Mobalpa
2022
Photography Styling, Architecture Photography, Interior Design
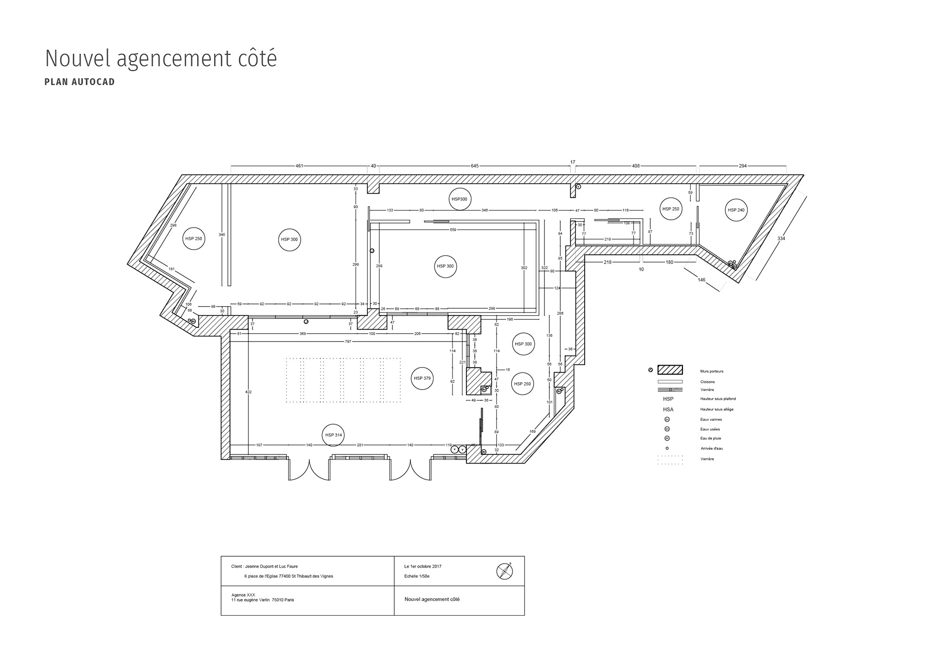
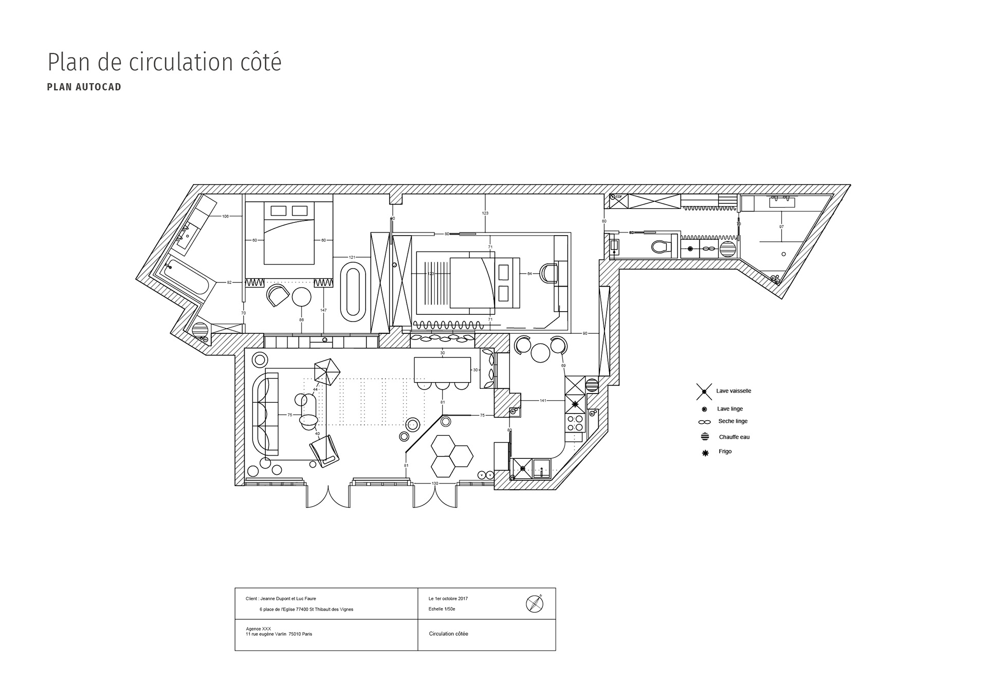
L'appartement du 7ème
2021
Photography, Interior Design, Photography Styling
Old Wood CARTOMANCY
2018
Illustration, Crafts, Interior Design
↑
Back to Top